产品型号说明
使用条件
● 周围空气温度不高于40℃,不低于-5℃,24小时内平均温度不得高于+35℃。
● 户内使用,使用地点海拔高度≤2000m。
● 周围空气相对湿度在最高温度+40℃时,不超过50%;在较低温度时允许有较大的相对湿度,+20℃为90%,应考虑由于温度变化可能偶然产生的凝露的影响。
● 装置安置时与垂直面的倾斜度不超过5°。
● 装置应安装在无剧烈震动和冲击,以及不足以使电器元件受到不应有腐蚀的场所。
● 用户有特殊要求时,可以与制造厂协商解决。
电气性能
基本电气参数
● 额定绝缘电压:交流500V
● 额定工作电压主电路:交流220V
● 额定频率:50Hz
● 额定电流:单相电度表最大允许电流40A
表前隔离开关45、63、100A
表后断路器80、63、40、32、25、20A
额定短时耐受电流4.5,6kA
主电路方案
根据北京市规划建设委员会《住宅电气设计通用标准》规定,住宅每户设计容量≥6KW,每户户用电度表的选用不应小于5(20)A的四倍宽幅表。为了便于小区式建筑的集中管理,电表箱设计为双门双锁。大门和锁由管理人员管理,控制表前隔离开关及计量箱内电气元件,每个电度表设小门,由用户自行上锁管理,可以观察电度表运行及插卡操作,还可以操作表后开关,对单元户内停电。
根据北京市供电局业扩处推荐方案,XM配电箱选用DD862电度表。正泰或ABB公司的隔离开关和与磁卡表联动的空气开关。
根据北京市建筑特点,计量箱设计为1-4回路共4个方案,适用于不同的单元户型。
安装与使用
● 计量箱到达收货地点后,首先应检查包装是否完整无损,技术文件和随机辅料是否齐全,发现问题及时与制造厂联系解决;
● 计量箱安装应按提供的尺寸固定于墙面上;
● 计量箱使用前应手动操作开关手柄,检查是否灵活,无卡滞现象。计量箱内的PE铜排为主接地点,应可靠连接接地保护线后,方可通电使用。
结构特点
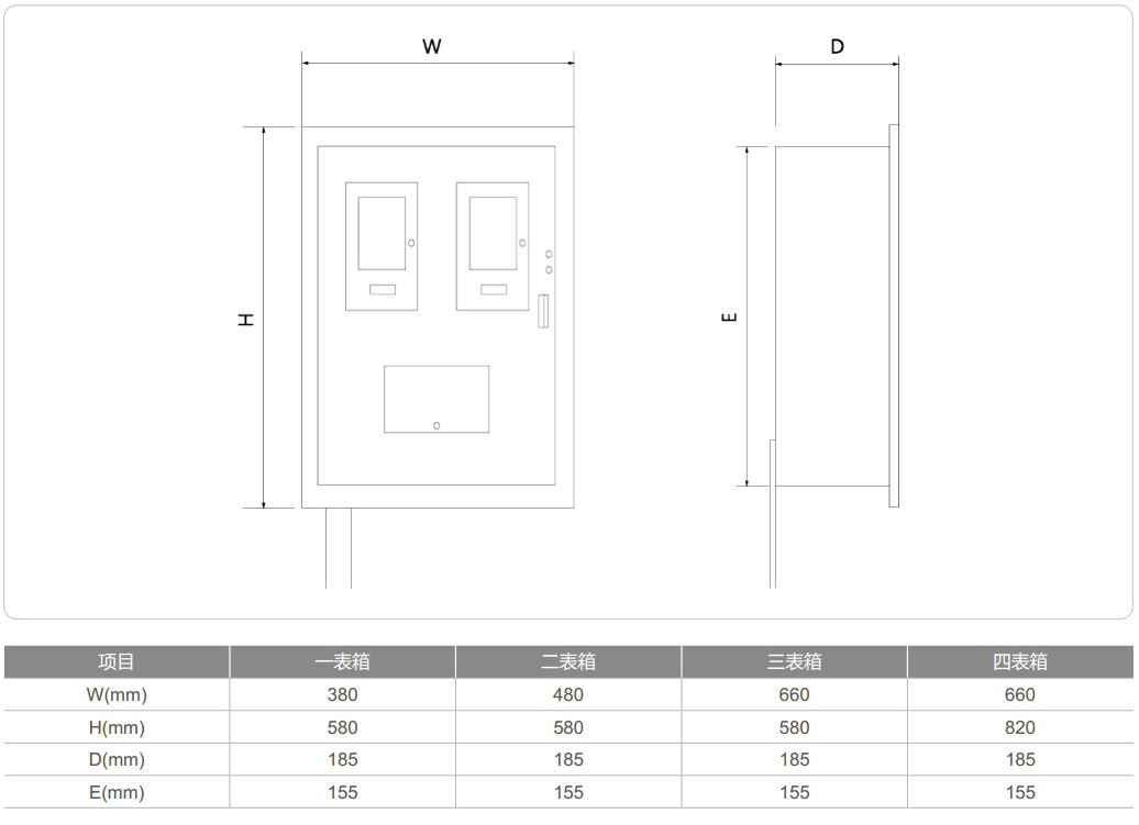
计量箱采用薄钢板焊接结构,暗(明)装悬挂式安装。基本的尺寸规格见 表1:

计量箱为方便管理,大门设有铅封柱,小门设有观察窗。 计量箱表面涂层采用喷塑工艺,可根据用户需要选色。
订货须知
订货方应提供:
1.计量箱主回路数。
2.外形和安装尺寸要求,
3.主要元器件型号,涂层材料和颜色。
4.交货时间和地点,及交货方式。
产品附件
● 装箱清单、电气原理图、出厂合格证、出厂试验报告
● 装置使用说明书和主元件的使用说明书及合同规定的备品备件
外形尺寸和安装尺寸